Коттедж в поселке Никольская слобода
Описание
Продажа новой загородной резиденции площадью 2222 кв. м. Новорижское шоссе, 9 км от МКАД. Коттеджный поселок Никольская Слобода. Дом построен в стиле Ллойда Райта. Выполнена высококачественная дизайнерская отделка под ключ в стиле Райта с элементами Ар-Деко. Комнаты отличаются простором, высотой потолков, открытыми террасами и балконами, дом наполнен большим количеством света и воздуха. В отделке интерьеров используются качественные и натуральные материалы премиального класса, только итальянский мрамор, массив дерева, оникс, мозаика ручной работы, латунь и дорогие чугунные батареи. Фасад дома выполнен из клинкера, крыша — стропильная система из металлоконструкции. Укомплектован всей необходимой премиальной техникой. Сантехника в доме представлена европейскими производителями, освещение — американскими. Необыкновенный набор помещений и планировка изумляют. Установлена система вентиляции и кондиционирования. Прекрасное расположение резиденции на зеленом, уютном участке 50 соток с готовым ландшафтным дизайном. На участке высажены крупномеры и хвойные деревья, а также расположен гараж на 4 места с квартирой для персонала.
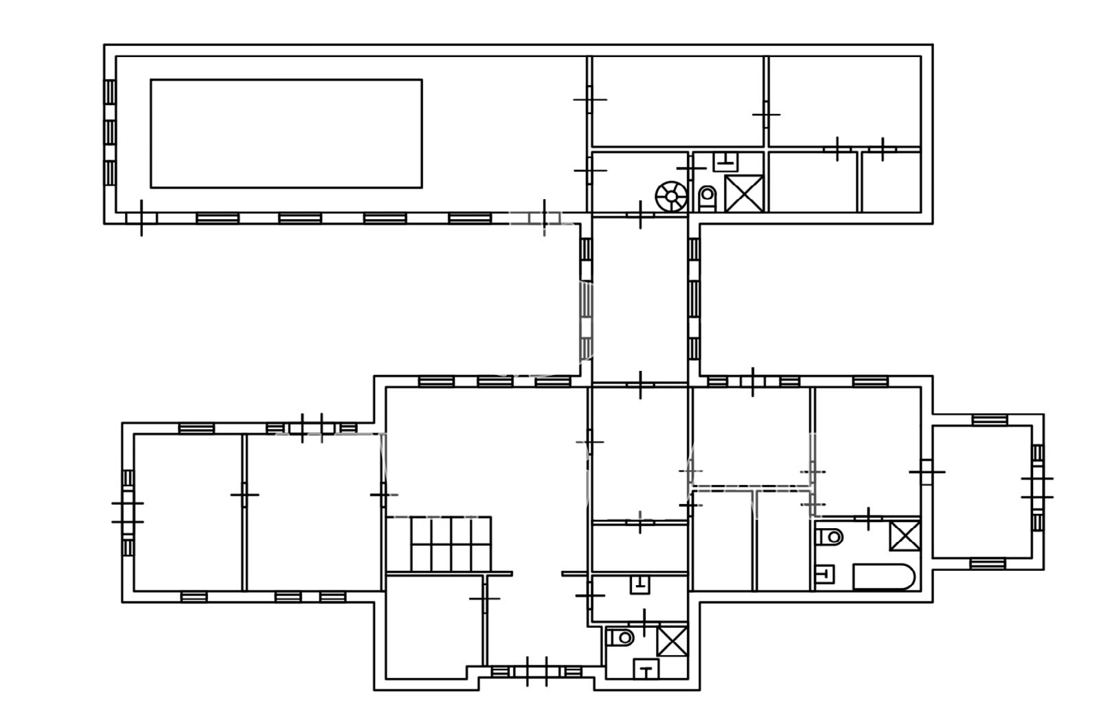
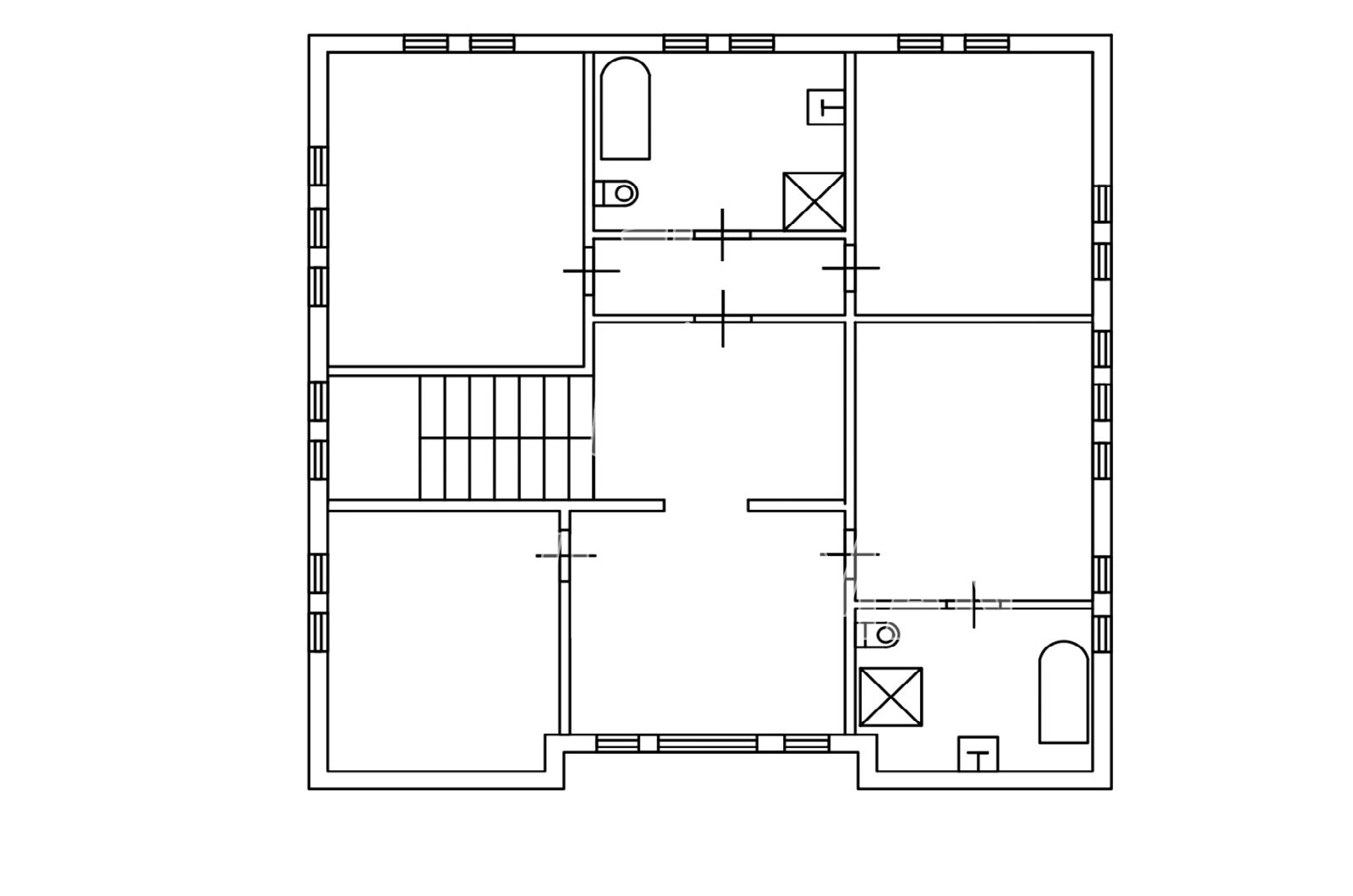
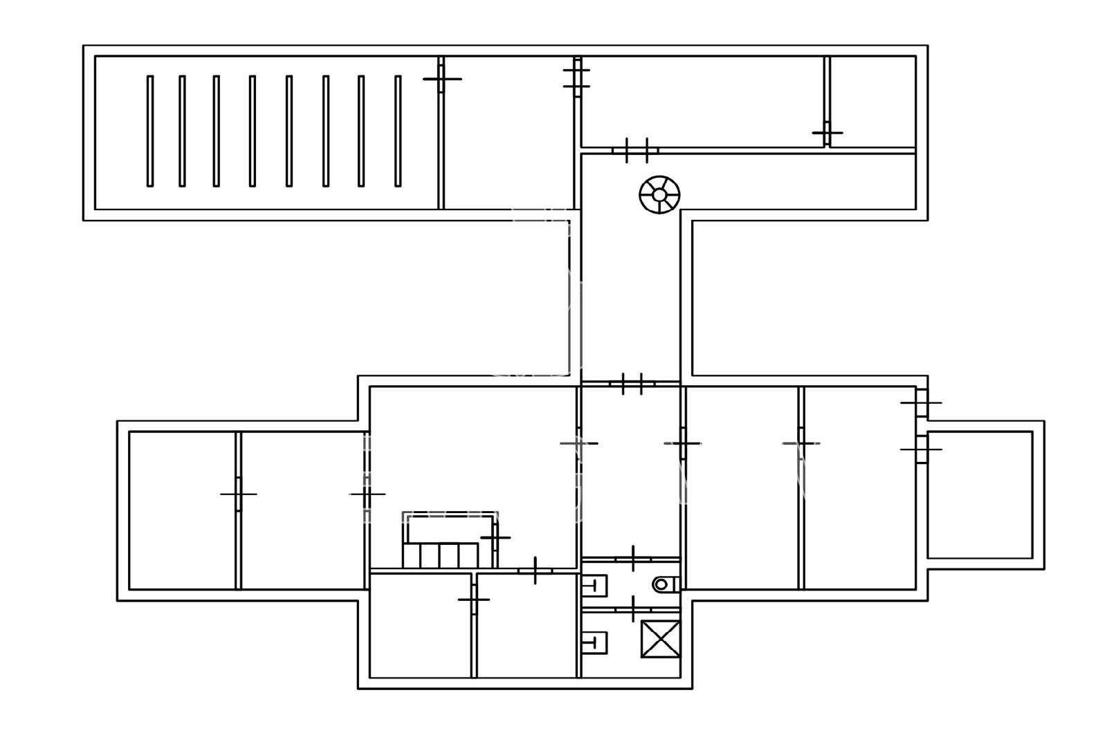
Планировка:
1 этаж - холл, гардеробная, гостиная с камином, кухня, столовая, выход на террасу с джакузи и зоной барбекю, с/у, библиотека, хозяйская спальня с с/у, гардеробной, гостиной и кабинетом. Spa-зона: комната отдыха, с/у, бассейн (15х6м), выход на террасу, сауна, хаммам, купель,
2 этаж - холл, мастер-спальня с с/у, гардеробной и балконом, 2 спальни, с/у,
Цоколь - дискозал, бильярдная, кальянная, кинотеатр, тренажерный зал 3 части, 2 с/у, раздевалка, душевая, серверная, котельная.



