Коттедж в поселке Горки-2
Описание
Продажа загородного дома общей площадью 2350 кв.м. Коттеджный поселок Горки-2. Рублево-Успенское шоссе, 15 км от МКАД. Дом построен в 3 этажа, без отделки. Дом с бассейном на ландшафтном участке с вековыми деревьями и выходом к Москве-реке. На участке расположены отдельно стоящий дом для гостей с двухэтажным банным комплексом из сруба. Гараж на 4 машиноместа с 2-мя квартирами для персонала и охраны. Залита площадка под футбольное поле, есть фруктовый сад. Площадь участка 120 соток.
Планировка:
1 этаж - холл, гардеробная, гостевой с/у, лифт, гостиная, каминная, столовая, кухня, кабинет, гостевая спальня с с/у и гардеробной, бассейн со спa-зоной,
2 этаж - мастер-блок с гостиной (комната для хобби), 3 гардеробными и ванной комнатой, 2 детских блока со своими гостиными, гардеробными и с/у, библиотека, зимний сад и 2 террасы,
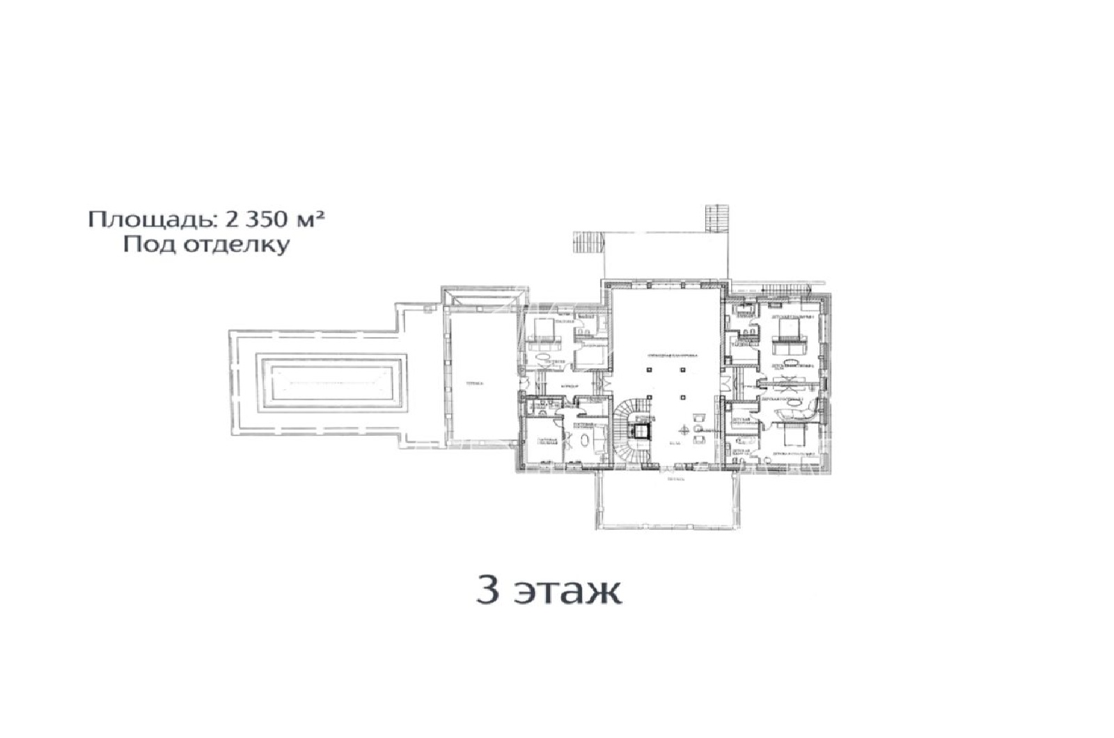
3 этаж - помещение свободного назначения и 4 спальных блока, каждый со своей гостиной, спальней, гардеробной и с/у,
Цоколь - оружейная, бильярдная, тренажёрный зал с душевой и раздевалкой, косметический салон и массажная, кинозал, черновая кухня, помещение для персонала, постирочная и подсобные помещения.




