Коттедж в поселке Раздоры-2

Рублево-Успенское ш. (5 км)

Описание

Продажа загородного дома площадью 725 кв.м. Коттеджный поселок Раздоры-2. Рублево-Успенское шоссе 5 км от МКАД. Дом построен в 2 этажа, без отделки. Функциональная и комфортная планировка. Коммуникации заведены. Расположен в центральной части поселка. Соседи построены и живут. Площадь участка 19 соток. 



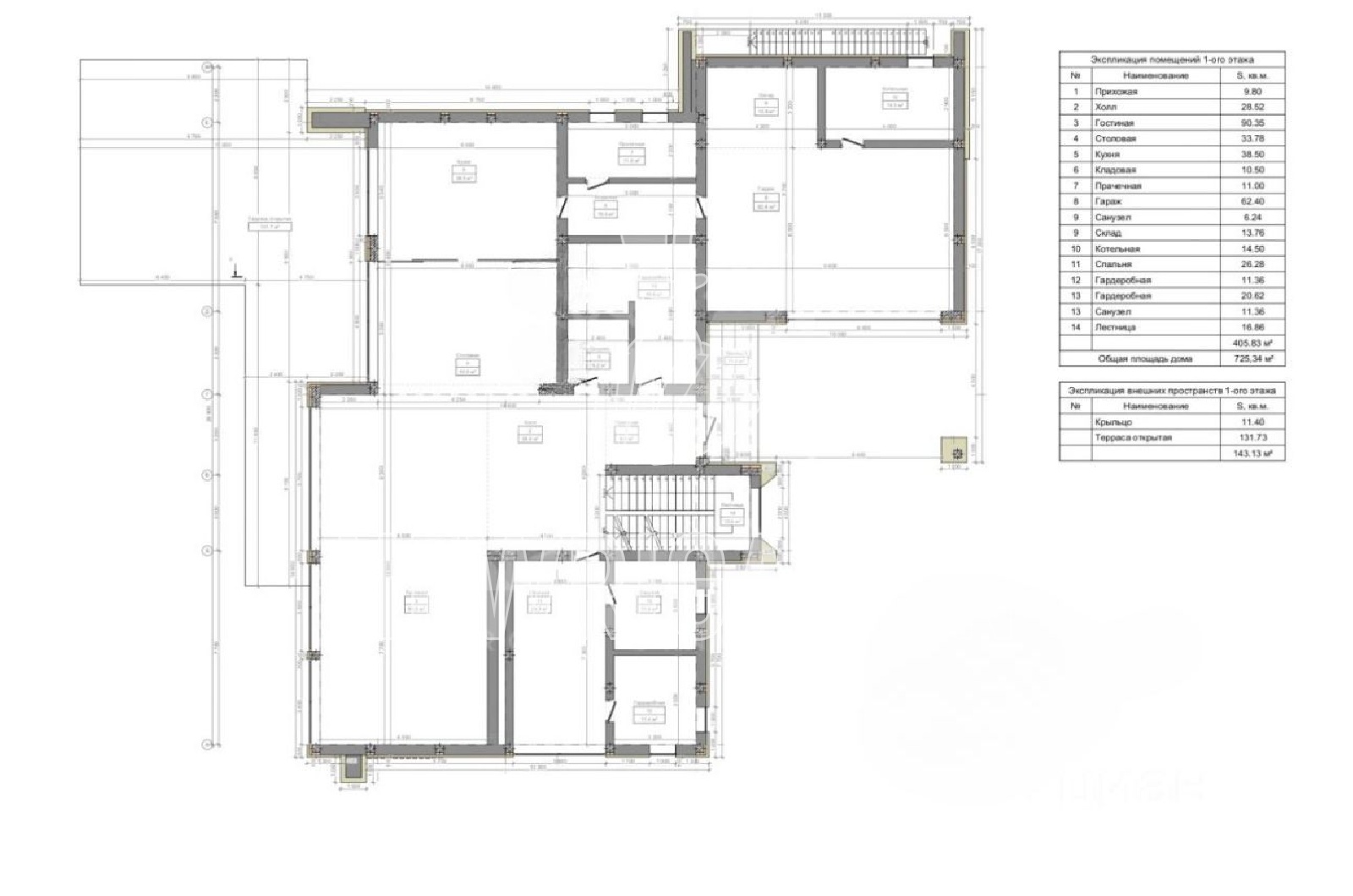
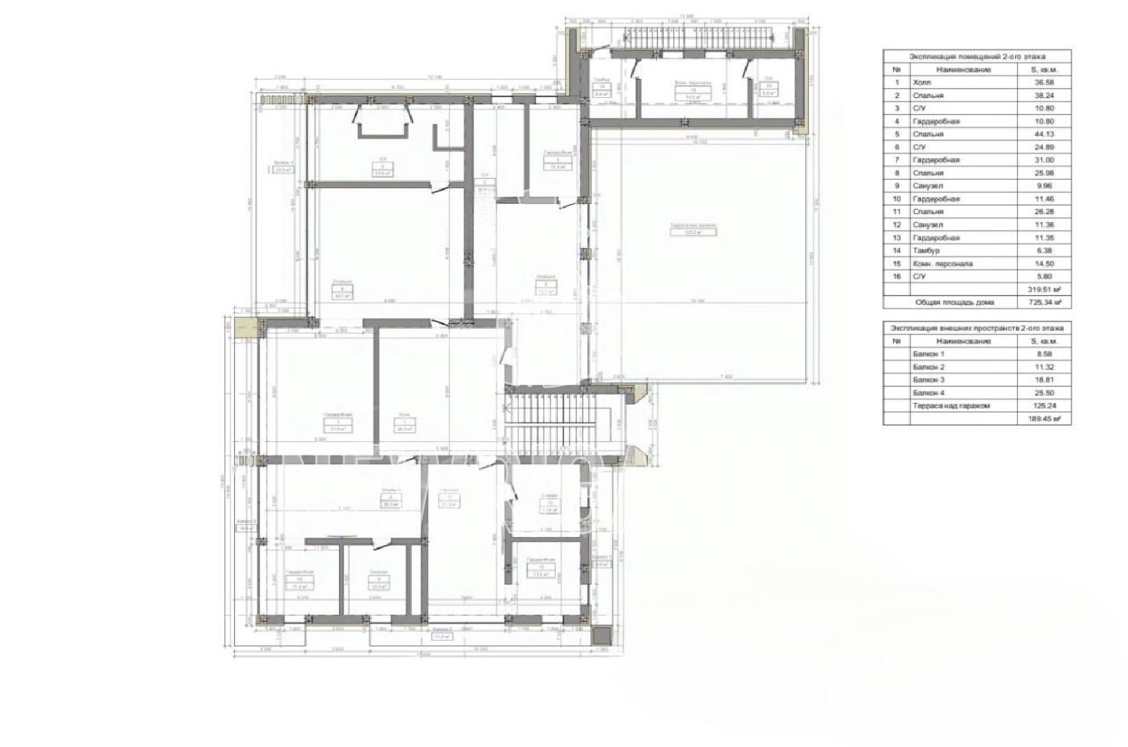
Планировка:

1 этаж - холл, гардеробная, с/у, гостевая спальня с с/у и гардеробной, гостиная, столовая, кухня, кладовая, терраса, постирочная, гараж на 2 м/м, с/у, кладовая, котельная,


2 этаж - холл, 3 спальни с с/у и гардеробные, спальня с с/у, гардеробной и балконом, блок персонала с отдельным входом (спальня, кухня, с/у).

Посёлок
Раздоры-2

Самый близкий к Москве элитный поселок «Раздоры-2» находится всего в 5 км от МКАД по Рублево-Успенскому шоссе. Поселок относится к новейшему загородному жилью премиум-класса. Он расположен в живописном месте на берегу Москва-реки и окружен густым сосновым бором. На территории 170 гектаров располагается 250 участков и домовладений. Желающие могут купить готовые обустроенные дома или земельные участки под застройку. Весь поселок выполнен в едином архитектурном стиле – британском. Современные двух- и трехэтажные дома из красного кирпича и белого камня площадью от 250 до 2000 кв.м привлекают лаконичным дизайном и строгой английской сдержанностью. Каждый особняк имеет большой приусадебный участок от 8 до 45 соток. Коттеджный поселок отличается эстетичностью, современностью, функциональностью и высоким качеством. Английским архитекторам удалось создать максимальный уют и комфорт.




Внутренняя инфраструктура: В распоряжении владельцев благоустроенная территория с дорожками, парковыми зонами и детскими площадками.




Внешняя инфраструктура: Вокруг поселка расположена благоустроенная лесопарковая зона для прогулок, специально оборудованные островки со скамейками, где можно насладиться лесным пейзажем. На побережье реки предусмотрены не только места для комфортного отдыха с уникальным ландшафтным дизайном, но и дорожки для прогулок на велосипедах. Бизнес-центр, рестораны, спортивные клубы, детские магазины, супермаркеты, spa- салоны, кафе – все эти и другие социально-развлекательные объекты расположены в непосредственной близости к поселку. Жители могут свободно пользоваться всеми услугами обширной Рублево-Успенской инфраструктуры. Рядом с поселком расположена гимназия им. Е. Примакова с обучением на двух языках по зарубежным методикам, спортивным комплексом с бассейном и детским садом.




Поселки рядом: Флоранс, Барвиха, Жуковка

Подробнее о посёлке

Не нашли
то, что искали?

Оставьте свои контактные данные и я пришлю вам подборку подходящих предложений