Коттедж в поселке Жуковка
Описание
Продажа загородного дома общей площадью 1215 кв.м. Поселок Жуковка, Рублево- Успенское шоссе, 9 км от МКАД. Дом построен в 2 этажа, под ключ. Интерьеры, созданные под руководством архитектора Екатерины Григорьевой, несут в себе философию Джона Саладино. Основой концепции стала его философия - хода времени, воплощенная в интерьере через включение антикварных предметов и искусства, которые, подобно живой ткани, связывают прошлое с настоящим. Минеральная колористика стен, антикварные люстры из Парижа, мебель Arthur Brett и Mark Wilkinson — каждая деталь становится частью повествования о вечности и прекрасном. Ощущение непрерывного течения времени проявляется в диалоге между историческими артефактами и современными элементами, создавая живой, дышащий интерьер. Внутренняя планировка воплощает принципы палладианской симметрии: на первом этаже общественные зоны плавно перетекают друг в друга, создавая единое пространство для жизни и приема гостей. Второй этаж предлагает уединение в трех спальнях с индивидуальными гардеробными и санузлами, а цокольный уровень открывает мир релаксации с бассейном, SPA-комплексом и кинозалом. Мансарда с просторной детской зоной завершает эту совершенную композицию. На участке площадью 52 сотки создана гармоничная ландшафтная композиция: реликтовые дубы соседствуют с аккуратными газонами для мини-гольфа, сформированный сад дарит разнообразие ароматов, а продуманное зонирование создает идеальный баланс между частной жизнью и приемом гостей. Песчаные почвы обеспечивают естественный дренаж, сохраняя территорию безупречной в любую погоду. Имеются дополнительные строения: павильон для приемов с террасой, винный погреб с дегустационной зоной, дом для персонала, помещение охраны, гостевой блок, оранжерея с домиком садовника, отдельностоящий теплый гараж на 2 м/м, парковка до 10 авто на участке.
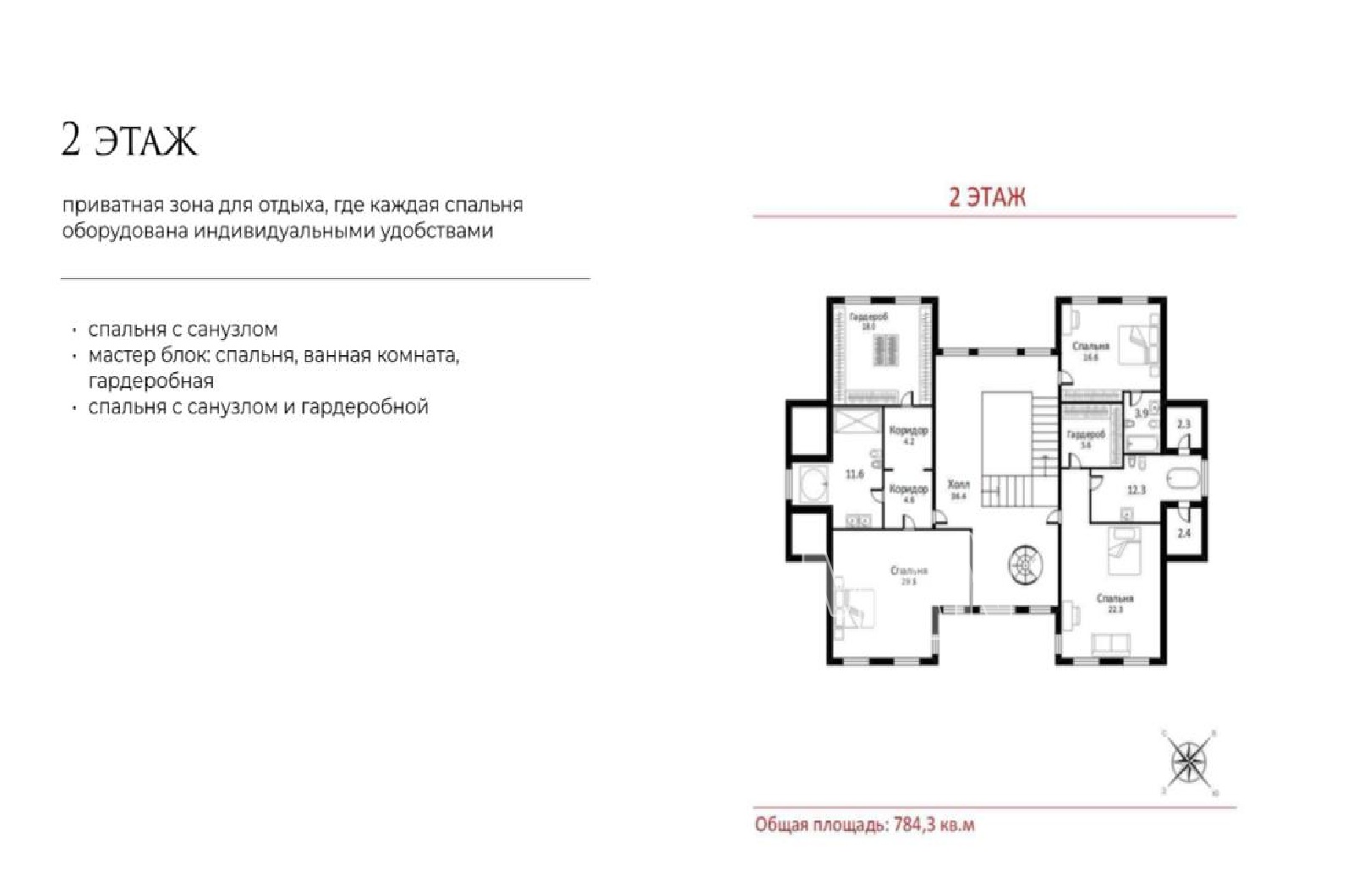
Планировка:
1 этаж - холл с выходом на просторную террасу, гардеробная, с/у, кабинет, каминный зал с выходом во двор, кухня-столовая с выходом на просторную террасу, каминная зона отдыха,
2 этаж -спальня с с/у, 2 спальни с ванными комнатами и гардеробными,
Цоколь - сауна, с/у, 2 душевые, хаммам, зона отдыха, бассейн с противотоком, кинозал, чемоданная, комната для хранения, постирочная, массажная, котельная,
Мансарда - 2 спальни, с/у,
Гостевой дом 1 - столовая, 3 спальни, 3 санузла, столовая, коридор, 2 террасы, котельная,
Гостевой дом 2 - кухня, столовая, бар, каминный зал, гардероб, терраса.






