Коттедж в поселке Риита
Описание
Продажа загородного дома общей площадью 1214 кв.м. Рублево-Успенское шоссе, 21 км от МКАД. Коттеджный поселок Риита. Дом построен в 2 этажа, под ключ, с мебелью. Дизайнерская отделка, уникальное планировочное решение. Светлый уютный интерьер выполнен в стиле современной классики. В отделке и предметах интерьера использовались оригинальные материалы и сложные фактуры: натуральный камень, дерево, металл. Дом полностью меблирован и оснащен всей необходимой бытовой техникой. Мебель и техника от ведущих мировых производителей. На участке 41 сотка, дополнительно расположен гараж с квартирой для персонала. Зона отдыха перед бассейном и беседка BBQ. Русская баня. Украшением лесного участка служат декоративные и цветущие кустарники, плодовые деревья и шикарный газон.
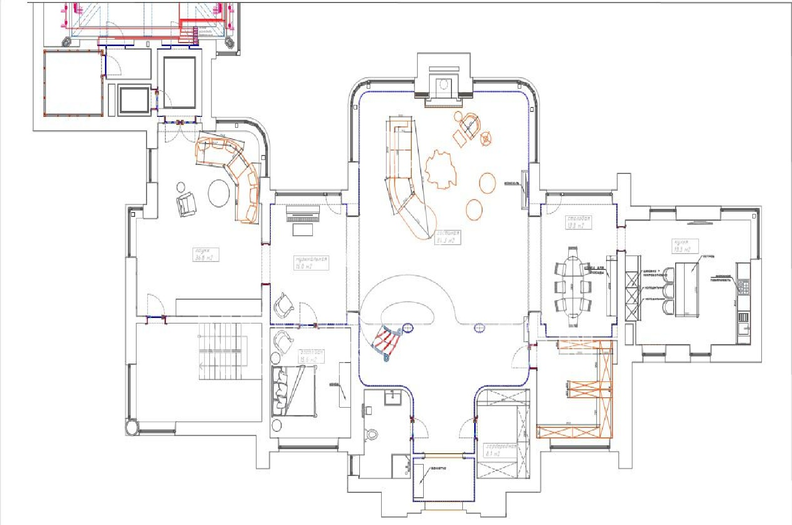
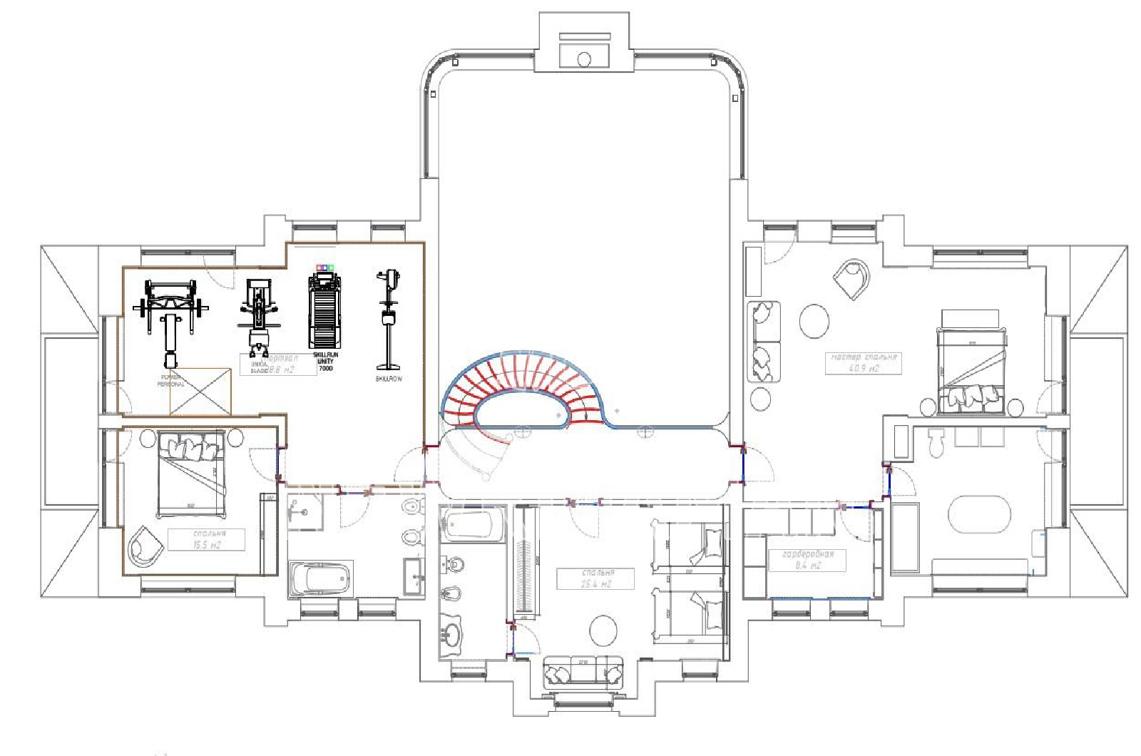
Планировка:
1 этаж - холл, гардеробная, гостевой с/узел, гостевая спальня, кухня с выходом на террасу, гостиная с камином со вторым светом, музыкальный салон, комната отдыха с библиотекой, спортзал, кладовая, SPA,
2 этажа - детская спальня с ванной комнатой, спальня со своим с/у, терраса, хозяйская спальня с гардеробной и ванной комнатой, холл, 2 балкона.
Цоколь - бильярдная, кинозал, соляная комната, постирочная, с/у, гардеробная.



