Коттедж в поселке Жуковка
Описание
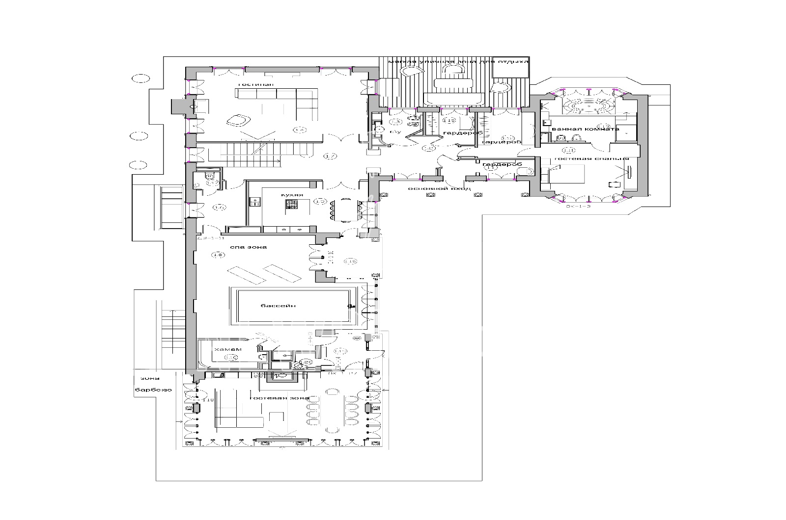
Продажа загородного дома общей площадью 1058 кв.м. Поселок Жуковка, Рублево- Успенское шоссе, 9 км от МКАД. Отделка выполнена под ключ из высококачественных материалов. Оборудован всей необходимой техникой и сантехникой. На участке расположен отдельный дом площадью 169.4 кв.м. с гаражом на 4 автомобиля и тремя спальнями для персонала. Система вентиляции и кондиционирования, видеонаблюдение. Вольер для собак, крытый навес на два автомобиля. На участке площадью 20 соток выполнен ландшафтный дизайн, лесные деревья и кустарники, расположен фонтан, зона барбекю и мягкая зона отдыха.
Планировка:
1 этаж - отдельная зона для приема гостей с камином, кухня, гостиная-столовая с камином и выходом в сад, спальня с ванной и гардеробной, бассейн с противотоком и водопадом, хамам,
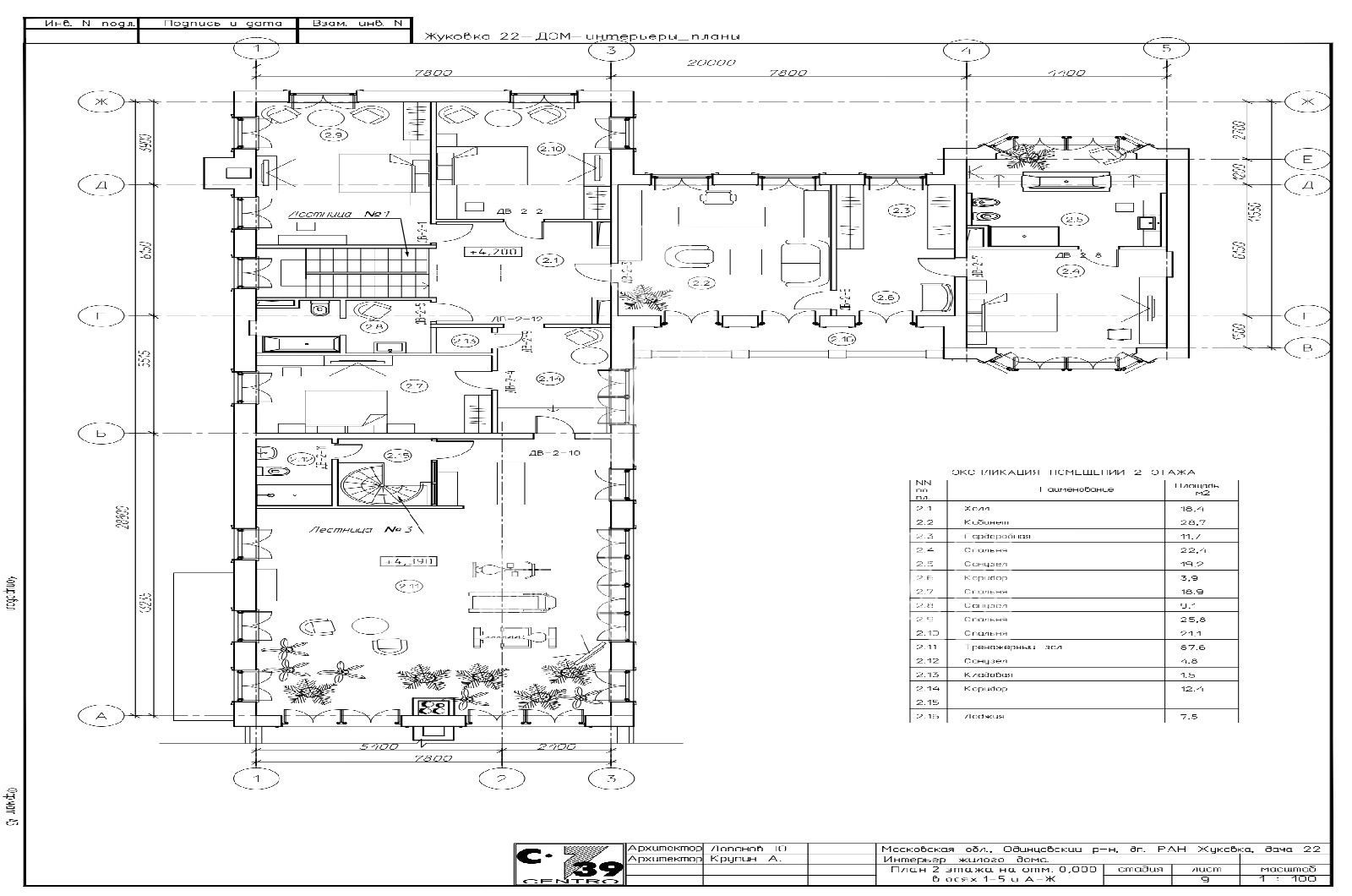
2 этаж - просторный спортзал Technogym с соляной комнатой, 4 спальни и кабинет,
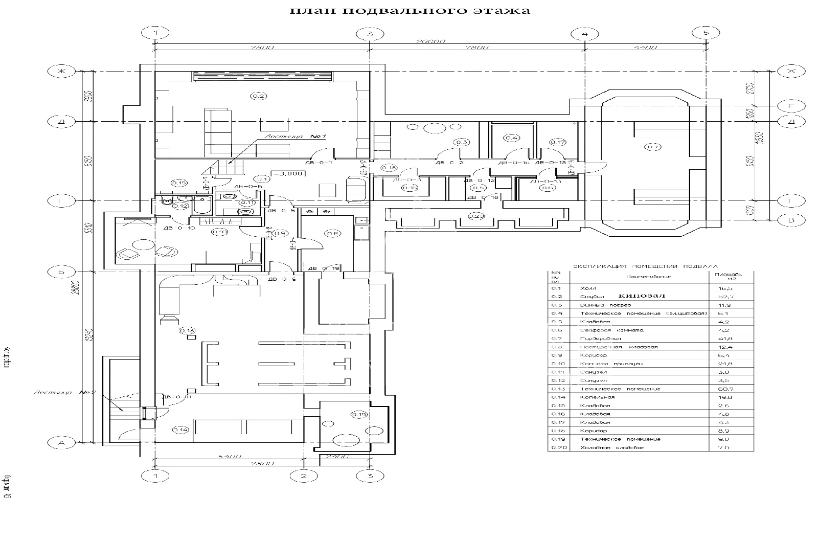
Цоколь - кинотеатр, винный погреб, гардеробная, кладовые, комната для персонала, постирочная, кухня, сейфовая комната.



