Коттедж в поселке Березки Ривер
Описание
Продажа загородного дома общей площадью 703,5 кв.м. Рублево-Успенское шоссе, 17 км от МКАД. Коттеджный поселок Березки. Дом строился под себя с максимальным вниманием и с использованием лучших материалов и технологий. В дополнение к проекту, на втором этаже реализована эксплуатируемая кровля-терраса площадью 180 метров с системой снеготаяния и инженерией под установку джакузи круглогодичного использования, а также летним душем. Реализована ВИП-терраса на крыше 3-го этажа с потрясающими видовыми характеристиками на поселок и лес. Облагороженный участок площадью 23,78 сот.
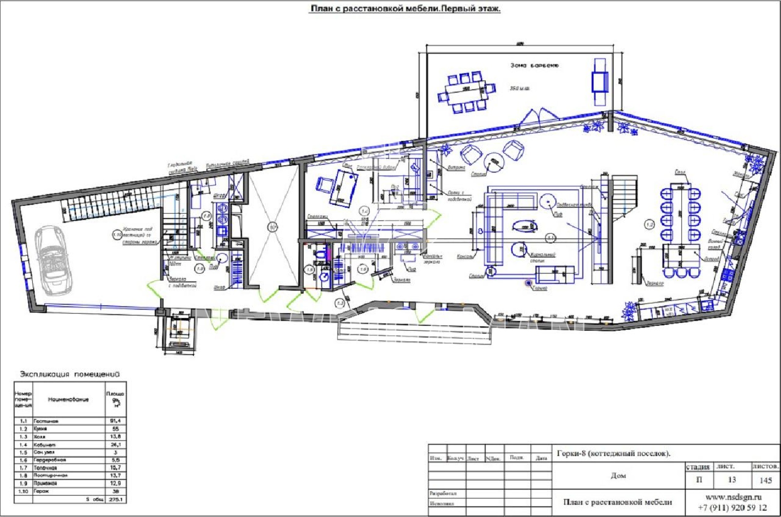
Планировка:
1 этаж- гостиная, кухня, холл, кабинет, с/у гардеробная, топочная, постирочная, прихожая, гараж.
2 этаж- гостевая комната, с/у, гардеробная, 2 детские комнаты со своими с/у и гардеробными, балкон, холл, коридор, массажная, холл. 3 этаж: мастер-спальня, 2 гардеробные, 2 с/у, коридор, терраса.



