Коттедж в поселке Березки Ривер
Описание
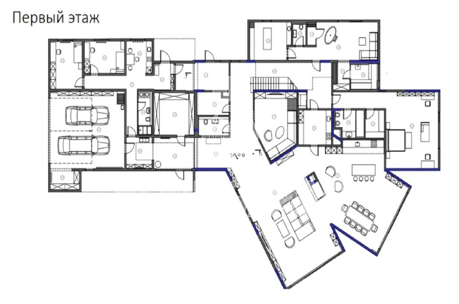
Продажа загородного дома общей площадью 970 кв. м. Рублево-Успенское шоссе, 17 км от МКАД. Коттеджный поселок Березки Ривер Вилладж. Дом построен в 2 этажа. Фасад выполнен из клинкерной плитки Feldhaus Klinker, камня и лиственницы, окна Schuco, приточно-вытяжная система Breezart, кондиционирование Daikin, умный дом, конвектора Mohlenhoff, радиаторы Arbonia. Большой, ровный участок 34 сотки с ландшафтным дизайном.
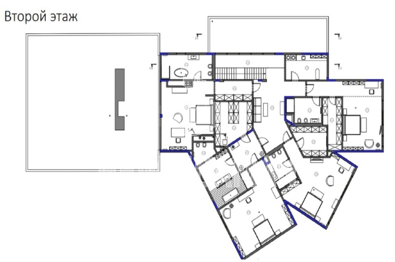
Планировка:
1 этаж - холл, гардеробная, кухня-столовая-гостиная с выходом на террасу, гостевая спальня с /у, гардеробная , спа-зона (массажный кабинет, с/у, комната отдыха, с/у), квартира для персонала с 2 спальнями,
2 этаж - 4 спальни с /у и гардеробными.


