Коттедж в поселке Березки Ривер
Описание
Продажа загородного дома общей площадью 1227 кв. м. Рублево-Успенское шоссе, 17 км от МКАД. Коттеджный поселок Березки Ривер Вилладж. Дом построен в 2 этажа, без отделки. Дом выполнен по индивидуальному проекту, имеет продуманную планировку и панорамное остекление фирмы Schuco. Площадь участка 23 сотки.
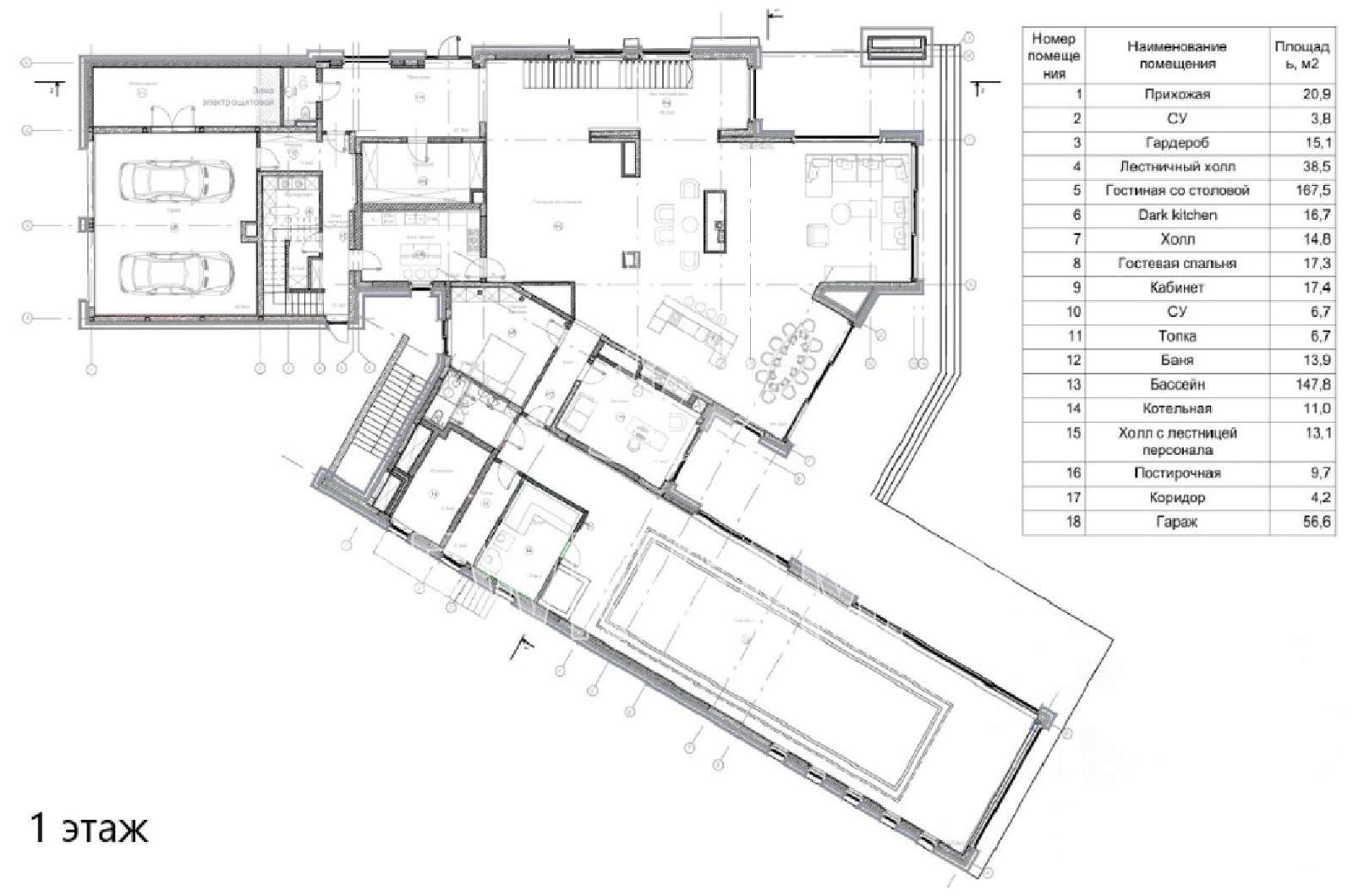
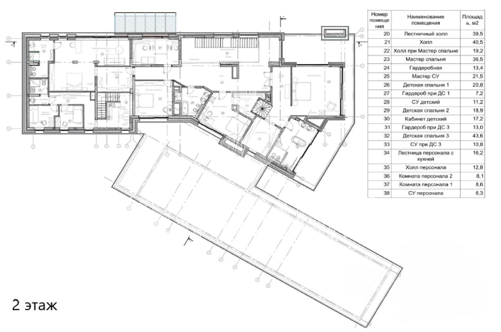
Планировка:
1 этаж - холл, гардеробная, гостевой с/у, гостиная со столовой зоной, кухня, гостевая спальня, кабинет, ванная комната, бассейн, баня, постирочная, гараж на 2 м/м,
2 этаж - 4 спальни с гардеробными и ванными комнатами, детский кабинет, 2 спальни с холлом для персонала.


